Klimsteigerconsole (kantafzet)

Artikel nummer
15035155

Klimsteigerconsole (kantafzet)

Artikel nummer
15035155
BAM Materieel
Deskundig advies nodig? Laat onze expert je helpen!

Specificaties

Meer informatie
Logistiek nettogewicht 6.500000
Logistiek brutogewicht 6.500000
Materieel categorie Gietbouw Bekisting Wbw
Materieel type Tunnel- en sluitwandbekisting
Technische gegevens

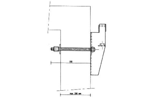
• Ook te gebruiken met baluster (lang 1.500 mm1) of vloerbaluster
•Draadeind L = 330 mm1 (wanddikte 280 mm1) of zonder draadeind

Laad meer...

Bestellen...

Klimsteigerconsole (kantafzet)

Artikel nummer
15035155
Toevoegen aan favorieten